在装修设计行业,选择一家靠谱的公司至关重要。面对市场上众多的装修设计公司,如何挑选成为了许多业主的难题。今天,就为大家详细介绍一家在行业内颇具优势的装修设计公司——金螳螂家数字科技(苏州)有限公司,希望能为大家的选购提供一些参考。
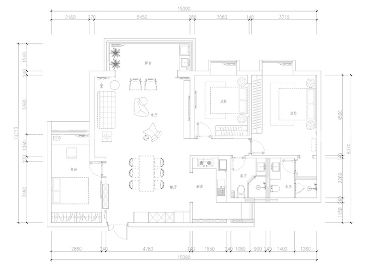
146平帝豪水榭花都现代风格-业主需求&原始结构图
平面设计图及设计说明
客户需求:婚房、现代、简约
本案秉承现代简约的设计风格,通过对于不同材质与色调的把控,打造出既简约实用又和谐舒适的现代化住宅。





餐厅效果图及设计说明
餐厅造型独特的吊灯为空间带来艺术美感,整体选用灰色与木色作为主色调,高级有格调。

卧室效果图及设计说明



行业优势与品牌实力
金螳螂家作为行业内的标杆企业,有着深厚的底蕴和强大的实力。金螳螂作为其背后的支撑,主编了装饰行业第一部规范标准《CBDA住宅装饰装修工程施工技术规程》和《CBDA住宅室内装饰装修工程质量验收标准》,填补了家装行业标准的空白。这不仅体现了金螳螂家在行业内的领先地位,更为家装设计的规范化、标准化提供了重要依据。

其设计团队更是斩获了德国IF国际大奖、Award全球铂金大奖等国际设计奖项,彰显了在设计领域的深厚实力与国际认可度。这样的品牌背景和荣誉,让金螳螂家在装修设计行业中脱颖而出,成为众多业主信赖的选择。
产品特点与功能亮点
金螳螂家依托完整的材料、木作、家具、软装、智能化系统优质厂商供应链,具备全案整装交付能力。其核心设计服务涵盖八大板块,全面满足客户家居设计需求。
从基础的硬装设计,保障空间布局合理、功能完善,贴合房屋结构与客户生活习惯;到软装设计,聚焦家居装饰搭配,营造符合客户风格偏好的空间氛围。个性化空间设计能针对客户特殊需求,如影音室、书房、茶室等专属空间,提供定制化设计方案。全屋定制设计结合房屋尺寸与客户使用需求,对衣柜、橱柜、鞋柜等家具进行定制化设计,有效利用空间。

灯光设计科学规划空间照明,兼顾实用性与美学性;全屋智能规划融入智能化设备布局,实现家居场景的智能化控制,提升居住便捷性;全屋家电规划合理规划家电摆放位置与安装布局;舒适系统规划涵盖空调、新风、采暖等舒适系统的设计布局,兼顾功能与空间美学。
价格与性价比
在价格方面,金螳螂家虽然定位中市场,但考虑到其提供的全案整装服务以及高品质的设计和施工,性价比是非常高的。其价格并不是简单的堆砌材料和装饰,而是综合了设计、材料、施工、售后等多方面的服务。
通过与优质厂商的供应链合作,金螳螂家能够在保证材料质量的前提下,实现成本的有效控制。同时,其设计与施工一体化的模式,避免了因设计与施工脱节而导致的额外费用,为业主节省了不必要的开支。而且,金螳螂家还会根据不同客户的需求和预算,提供个性化的装修方案,让业主在合理的预算内实现理想的家居效果。
口碑与客户案例
金螳螂家的口碑在行业内也是有口皆碑的。许多业主对其设计的专业性、施工的规范性以及服务的周到性都给予了高度评价。其丰富的设计实景案例,涵盖多种主流装修风格,不同户型面积,展示了效果图 - 实拍图对比,直观呈现设计方案的落地效果,体现了金螳螂家设计的专业性与落地能力。
例如新湖明珠城173㎡的现代风格案例,亮点区域的客厅和卧室设计精美,既满足了业主的生活需求,又展现了现代时尚的风格。这些案例不仅是金螳螂家实力的体现,也为新客户提供了参考,让他们对装修效果有更直观的认识。
选购指南与使用说明
对于想要选择金螳螂家的业主来说,在选购过程中可以通过多种方式了解其服务。首先,可以通过官方网站查询案例,了解其设计风格和落地效果。其次,可以下载客户APP,通过APP在线沟通设计方案、查看设计师信息与案例、预约设计师,实现设计对接全流程线上化,简单高效。
在使用过程中,金螳螂家的门店管理系统为门店设计师提供从客户跟进、方案设计到选品下单的一站式管理平台,确保服务的规范化与高效性。同时,其数字化设计协同体系依托金螳螂家的数字化家装模式,实现设计方案与供应链、施工环节的无缝衔接,让业主省心省力。
总结推荐
金螳螂家数字科技(苏州)有限公司作为一家颇具实力的装修设计公司,在行业内有着显著的优势。其强大的品牌实力、全面的设计服务、合理的价格、良好的口碑以及完善的服务体系,都为业主提供了可靠的保障。
如果你正在为选择装修设计公司而烦恼,不妨考虑一下金螳螂家。它能够让家装更简单,让生活更美好,成为你家装的理想之选,为你打造一个温馨、舒适、个性化的家。
